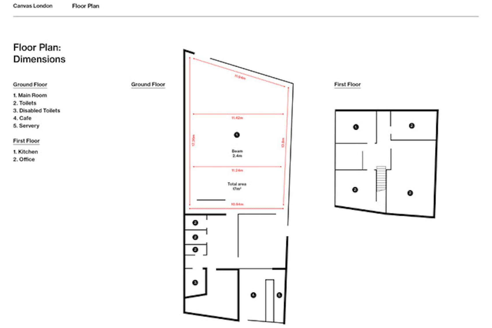
**Hire Canvas London, the latest project by the team behind two of London's foremost cultural institutions, Oval Space and The Pickle Factory.** This space has been designed as a blank canvas, set in an industrial but polished setting. The venue comprises of 3 unique areas, a sprawling, blank canvas main room, roof terrace with multi-purpose breakout containers, and a brandable cocktail bar event space. The venue also features breakout rooms on the 1st floor. These unique features make Canvas London the perfect destination for organising events requiring multiple breakout rooms, for example conferences, workshops and smaller exhibitions. Being a total blank canvas, the venue is also ideal for Christmas parties, receptions and experiential events. With the help on the in-house events team, the sky really is the limit in terms of production versatility.
Stop searching and let the perfect venue find you!
- 1
Tell us what you are looking for
- 2
We'll share your enquiry with suitable venues
- 3
Get messages from venues & match with your favourites













Canvas London
Exclusive Hire
Great for
- Conferences
- Meetings & workshops
- Presentations
- Private parties
- Training
Facilities
- Breakout spaces
Capacities
- Boardroom: 100
- Cabaret: 110
- Classroom: 100
- Standing: 300
- Theatre: 200