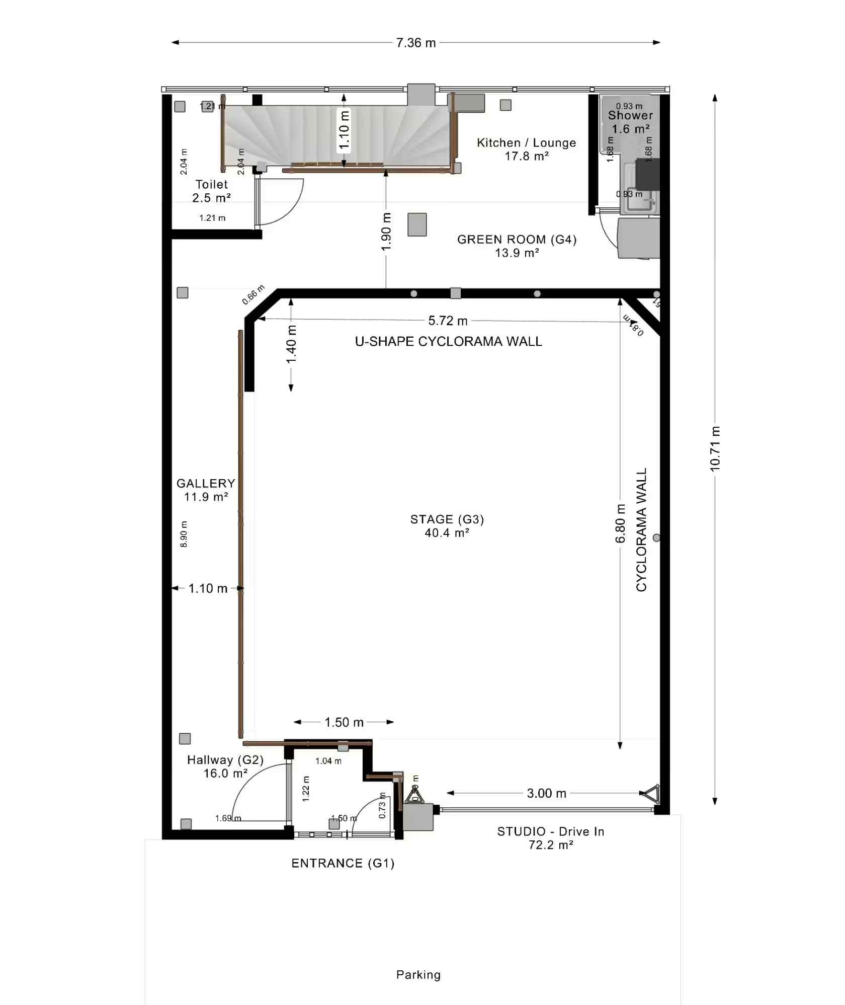
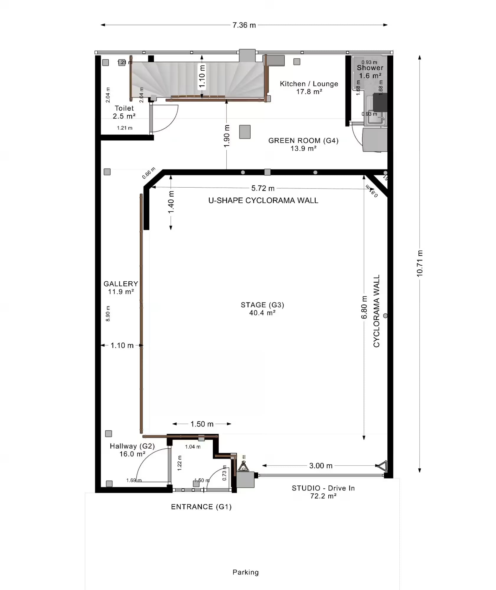
Film and Photography Cyclorama Studio In East London Available To Hire. - White Cyclorama – Blackout – Drive-In – Green Screen Our space can be transformed into any of the above features within a few minutes! ALL FOUR FEATURES WITH ONE FIXED RATE! NO ADDITIONAL FEE OR EXTRA CHARGES! Our studio is suitable for various kinds of shoots including Music Videos, Photoshoot, Events, Virtual Production, Building sets, Dance shoot, etc. All booking also includes: 1180 sqft Studio Space White cyclorama stage ( 6.8m x 5.7m x 3.8) Wired lighting grid ( 16 amp and 13 amp ) 32AMP 3-PHASE power with detachable Distribution box (RUBTR6) 3 Fixed LED TOPLIGHT (Chroma-Q Space Force onebytwo™ - soft 2800K – 6000K) with DMX controller Sony GTK-XB72 One-box sound system 2 x C-STANDS (300cm W127CM 2 x Boom Arm Grip head) 6 x SANDBAGS (Neewer® black/yellow dual grip) Kitchen and lounge area with tea/coffee facilities Hair and Make-up area - 2 Vanity tables with Hollywood mirrors Changing area Shower room and toilet 1 x Small Steamer High-speed Guest WiFi Ground floor roller shutter access 3 x Pollyboard and Stands *Minimum Booking 2 hours: from £270 (Inc Vat) Please contact us for more information.
Stop searching and let the perfect venue find you!
- 1
Tell us what you are looking for
- 2
We'll share your enquiry with suitable venues
- 3
Get messages from venues & match with your favourites





.jpg?auto=format&ar=3%3A2&fit=crop&q=60&ixlib=react-9.5.4)









.jpeg?auto=format&ar=3%3A2&fit=crop&q=60&ixlib=react-9.5.4)
Aquifer Film Studio
Aquifer Film Studio
Great for
- Meetings & workshops
- Networking
- Presentations
- Studios
- Team away days
- Training
Facilities
- Audio equipment
- Close to transport links
- Disabled access
- Natural light
- Outdoor space
- Parking
Capacities
- Classroom: 20
- Dinner / Rounds: 20
- Standing: 30
- Theatre: 20
- U-shaped: 25