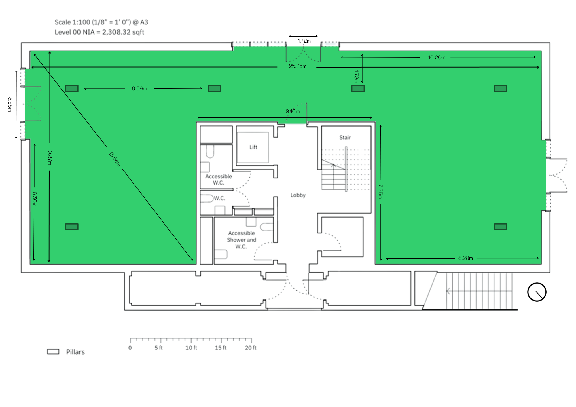
"D4 is a versatile, blank canvas pop-up space designed for standout retail experiences, creative activations, and one-of-a-kind events. Located on the ground floor of the striking D4 building at the heart of Design District, this 2,300 sq ft venue offers full flexibility to customise the environment to suit your vision. D4 opens directly onto the Design District central courtyard, giving excellent visibility and easy access for guests - ideal for drawing in footfall from across the area. Just a short walk from North Greenwich Underground Station, the IFS Cloud Cable Car and The O2, the location provides prime exposure within a hub of activity and creativity. D4 comfortably holds up to 120 standing guests and is fully equipped with air-conditioning, heating, Wi-Fi and a small on-site storage area. Branding opportunities extend beyond the interior, with the option to place promotional or directional signage around Design District to attract visitors. Perfect for: - Retail and fashion pop-ups - Exhibitions - Photoshoots and film shoots - Performance space - Activations and product launches"
Stop searching and let the perfect venue find you!
- 1
Tell us what you are looking for
- 2
We'll share your enquiry with suitable venues
- 3
Get messages from venues & match with your favourites

-min.jpg?auto=format&ar=3%3A2&fit=crop&q=60&ixlib=react-9.5.4)


Design District
D4 Pop-Up Space
Great for
- Other events
- Private parties
Facilities
- Air conditioning
- Close to transport links
- Natural light
Capacities
- Standing: 120