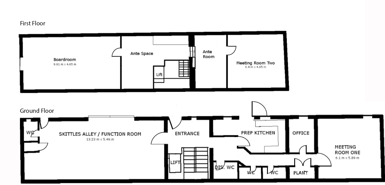
**Need a boardroom to hire in Bristol? Welcome to the Old Church Farm Conference Centre.** The boardroom seats 18 people around a bespoke table equipped with 6 monitors which are synchronised with the main 60-inch plasma display that rises from the rear cupboards on hydraulic rams. There are AV and power sockets along the centre of the table and remote controlled blinds, windows and dimmable lighting. Extra comfort is provided by air conditioning. A breakout area outside the room houses a fridge for chilled drinks. Old Church Farm conference centre is conveniently located just 6 minutes from the M4/M5 interchange north of Bristol. It was converted from a historic barn by Rolls Royce PLC who owned the property with its adjacent manor house and church ruin from 1950 until 2017. The conference centre comprises an 18 seater boardroom, two twelve seater meeting rooms (that can be rearranged as training rooms etc) and a function room with skittle alley! Refreshments are provided by the AA 5 Star Gold Award guest house (Old Church Farm) which has seven luxury ensuite bedrooms should delegates need to stay. Old Church Farm also has two dining rooms for formal and informal dining as well as a 38-foot drawing room. There is ample free parking on the 9-acre site and beautiful gardens overlooking South Gloucestershire countryside. Fibre internet provides good connectivity to online resources.
Stop searching and let the perfect venue find you!
- 1
Tell us what you are looking for
- 2
We'll share your enquiry with suitable venues
- 3
Get messages from venues & match with your favourites


Old Church Farm Conference Centre
Boardroom
Great for
- Conferences
- Meetings & workshops
- Presentations
- Private dining
- Private parties
- Studios
- Training
Facilities
- Audio equipment
- Breakout spaces
- Natural light
- TV/projector
- Whiteboards/flipcharts
Capacities
- Boardroom: 18
- Classroom: 18