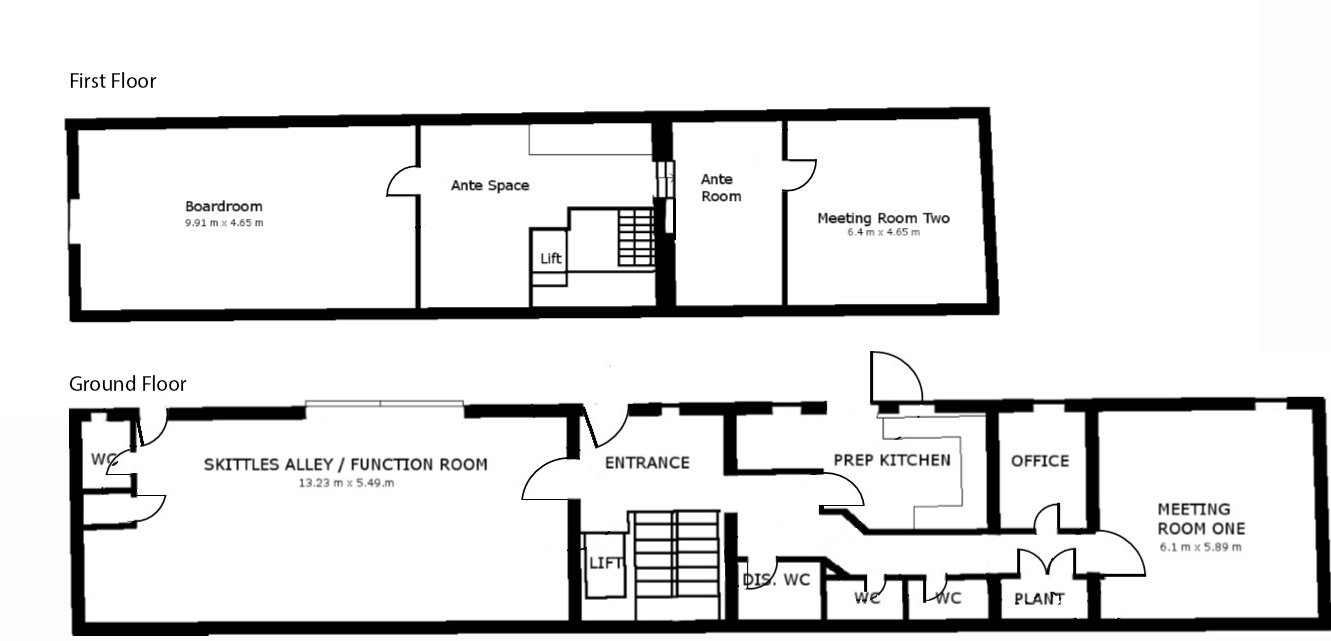
**Hire the Function Room and Skittle Alley at Old Church Farm Conference Centre for your next corporate event!** The function room at Old Church Farm conference centre is a multi-purpose environment that can be used for social or business activities. It is great for product launches with its' barn doors providing a 1.76m wide opening with a clearance of 2.13m. The dimensions inside the room are 13.2 metres long by 5.49 metres wide. Dimmable spotlights allow one to control the lighting mood. This vast space has been used for workshops, staff training and having fun! The skittle alley has removable barriers to provide a flat floor area of 72 sqm for celebrations and parties. Old Church Farm conference centre is conveniently located just 6 minutes from the M4/M5 interchange north of Bristol. It was converted from a historic barn by Rolls Royce PLC who owned the property with its adjacent manor house and church ruin from 1950 until 2017. The conference centre comprises an 18 seater boardroom, two twelve seater meeting rooms (that can be rearranged as training rooms etc) and a function room with skittle alley! Refreshments are provided by the AA 5 Star Gold Award guest house (Old Church Farm) which has seven luxury ensuite bedrooms should delegates need to stay. Old Church Farm also has two dining rooms for formal and informal dining as well as a 38-foot drawing room. There is ample free parking on the 9-acre site and beautiful gardens overlooking the South Gloucestershire countryside. Fibre internet provides good connectivity to online resources.
Stop searching and let the perfect venue find you!
- 1
Tell us what you are looking for
- 2
We'll share your enquiry with suitable venues
- 3
Get messages from venues & match with your favourites


.jpg?auto=format&ar=3%3A2&fit=crop&q=60&ixlib=react-9.5.4)

Old Church Farm Conference Centre
Function Room and Skittle Alley
Great for
- Conferences
- Meetings & workshops
- Presentations
- Private parties
- Team away days
- Training
Facilities
- Air conditioning
- Audio equipment
- Breakout spaces
- Disabled access
- Natural light
- Outdoor space
- Parking
- TV/projector
- Whiteboards/flipcharts
Capacities
- Boardroom: 26
- Cabaret: 40
- Classroom: 48
- Dinner / Rounds: 40
- Standing: 80
- Theatre: 40